Dwupak z potencjałem inwestycyjnym – dwa mieszkania w jednym adresie | Wykończone i umeblowane | Centrum Ostrowa Wlkp.
Lokal o łącznej powierzchni 73 m² został zaprojektowany tak, aby funkcjonował jako dwa całkowicie niezależne mieszkania. To gotowa propozycja dla osób, które chcą rozpocząć najem praktycznie od razu po zakupie. Lokal jest w trakcie wykończania - w podanej cenie otrzymasz również zabudowę kuchenną i AGD.
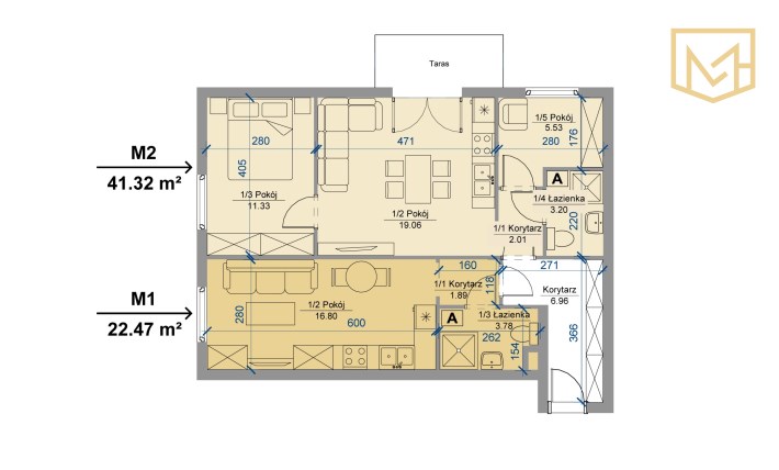
Nieruchomość składa się z dwóch osobnych mieszkań oraz przestrzeni wspólnej — każde z nich ma pełną funkcjonalność samodzielnego lokalu.
Rozkład i metraże:
M1 – 22,47 m²:
• pokój z aneksem kuchennym (16,80 m²)
• łazienka (3,78 m²)
• korytarz (1,89 m²)
M2 – 41,32 m²:
• pokój dzienny (19,06 m²)
• sypialnia (11,33 m²)
• łazienka (3,20 m²)
• korytarz (2,01 m²)
• dodatkowy pokój (5,53 m²)
Część wspólna:
• korytarz główny (6,96 m²)
Dlaczego to korzystne dla wynajmu:
• dwa osobne wejścia → pełna niezależność lokatorów,
• dwa aneksy kuchenne i dwie łazienki → pełna funkcjonalność,
• możliwość najmu krótko- i długoterminowego,
• minimalizacja ryzyka pustostanów — wynajmujesz jeden lub oba lokale,
• elastyczność — idealne dla inwestora, rodziny, pracy zdalnej lub działalności.
Każde z mieszkań zostało przygotowane do natychmiastowego użytkowania — w neutralnym, ponadczasowym stylu i pełnym wykończeniu.
Lokal znajduje się w budynku z windą, komórkami lokatorskimi i miejscami postojowymi. Położenie w centrum zapewnia szybki dostęp do pełnej infrastruktury — sklepów, usług, przedszkoli, szkół i terenów rekreacyjnych.
To rozwiązanie idealne dla:
Układ dwóch odrębnych mieszkań zapewnia szerokie możliwości adaptacji.
Dowiedz się więcej lub umów na prezentację:
787 066 908
M4 Ekspert Nieruchomości
Skutecznie | Z pewnością | Bezpiecznie
Bo decyzje o nieruchomości to coś więcej niż transakcja.



